Appelez-nous
-
-
Ecrivez-nous
contact@agencesoyez.fr
-
45 avenue Albert 1er
59300 Valenciennes
Appelez-nous
Ecrivez-nous
45 avenue Albert 1er
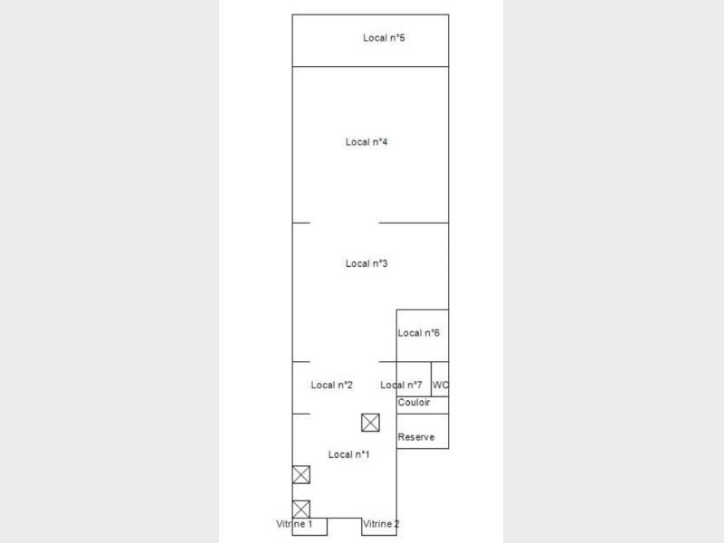
Rez de chaussée commercial de 120m² environ
REF AGENCE: 18393
Loyer annuel : 18 000€ HC soit 1 500 € HC / mois
Dépôt de Garantie : 2 mois de loyer HC
Charges: 50€ / mois (copro)
+ Honoraires agence : 15% HT du loyer annuel
Les informations sur les risques auxquels ce bien est exposé sont disponibles sur : www.georisques.gouv.fr
| Surface habitable : | 120 m2 |
| SDB : | 0 |
| Type de chauffage : | |
| Energie : | |
| Conso théorique mini : | 0 €/AN |
| Conso théorique maxi : | 0 €/AN |
| Année de référence : | 0 |
| Garage : | 0 |
| Loyer mensuel HC : | 1500 € |
| Complément mensuel de loyer : | 0 € |
| Provision pour charges mensuelles : | 0 € |
| Loyer mensuel charges comprises : | 1500 € |
| Etat des lieux : | 0 € |
| Honoraires charge locataire : | 3240 € |
| Dépôt de garantie : | 3000.00 € |
| Honoraires visite, dossier & bail : | 8 €/m² |
| Honoraires état des lieux : | 3 €/m² |
| Référence : | 18393 |