Appelez-nous
-
-
Ecrivez-nous
contact@agencesoyez.fr
-
45 avenue Albert 1er
59300 Valenciennes
Appelez-nous
Ecrivez-nous
45 avenue Albert 1er
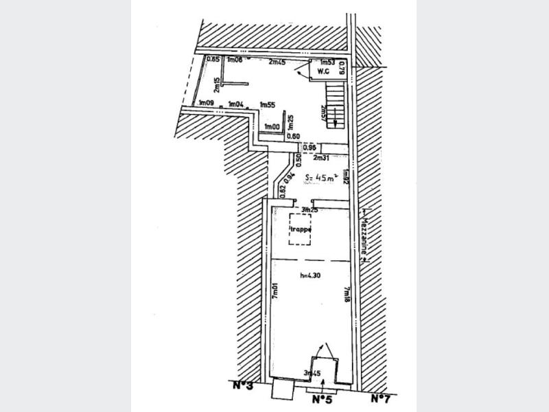
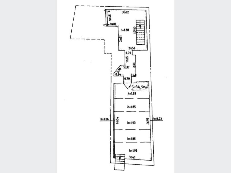
Local commercial de 79.90 m² à proximité immédiate de bâtiments historiques, de rues commerçantes et culturelles.
- RDC : 45 m²
- Sous-sol : 34.5 m²
Loyer annuel : 48 836 € HT HC soit 4 069.66 € HT HC / mois
Charges : 3 500 € HT / an, soit 291.66 € HT / mois (Assurance, Taxe foncière)
Dépôt de garantie : 2 mois de loyer HC
Taxe foncière : Incluse dans les charges
+ Frais d'agence : 15% HT HC du loyer annuel, soit 8 790.48 € TTC charge preneur
REFERENCE AGENCE : 18527
Les informations sur les risques auxquels ce bien est exposé sont disponibles sur : www.georisques.gouv.fr
| Surface habitable : | 80 m2 |
| SDB : | 0 |
| Type de chauffage : | |
| Energie : | |
| Conso théorique mini : | 0 €/AN |
| Conso théorique maxi : | 0 €/AN |
| Année de référence : | 0 |
| Garage : | 0 |
| Loyer mensuel HC : | 4070 € |
| Complément mensuel de loyer : | 0 € |
| Provision pour charges mensuelles : | 0 € |
| Loyer mensuel charges comprises : | 4070 € |
| Etat des lieux : | 0 € |
| Honoraires charge locataire : | 8790 € |
| Dépôt de garantie : | 8139.32 € |
| Honoraires visite, dossier & bail : | 8 €/m² |
| Honoraires état des lieux : | 3 €/m² |
| Référence : | 18527 |